400-961-9588
尚层装饰的工地-代表硬实力
上海第一分公司尚层装饰>上海第一分公司热装楼盘>九龙仓滨江壹十八 I 尚层专项组,因为专注,所以精致

九龙仓滨江壹十八 I 尚层专项组,因为专注,所以精致

服务优势:

服务客户43

免费申请户型规划 预约看工地 查看该楼盘在施工地
x
已有43业主预约
x
已有43业主预约
分享 :
x官方微信公众号

微信公众号

尚层



装饰

SHANGCENG / DESIGN


fashion

Top design

Industry benchmark

九龙仓滨江壹十八

楼盘户型:

四居,五居


楼盘地址:

浦东新区 - 上海市浦东新区浦明路1199号(近张家浜路)


最新开盘时间:2018-10-30


九龙仓滨江壹十八将推出建面,257 298 365三种房型

交房时间;2019年4月(部分已经交房)




尚层九龙仓专项组

专项组成员

Absorbed

专项项目总责任人:   刘莉


专项商务经理:         马聪丽,杨昕 


专项全案设计师:      李凡,陈海应,姜蕾,   陈晓宁,宋夏


专项深化设计师:      韩邵群,彭露露,钱青文



自项目组成立以来,即刻对九龙仓楼盘进行全面,彻底,仔细的深层调研。一切只因专注。专注为您,那卧室里的梦,一定是你想要的样子。




九龙仓深层剖析

噪音分析

NO.1




关于噪音

strepitus

噪声级为30~40分贝是比较安静的正常环境;超过50分贝就会影响睡眠和休息。由于休息不足,疲劳不能消除,正常生理功能会受到一定的影响;70分贝以上干扰谈话,造成心烦意乱,精神不集中,影响工作效率,甚至发生事故;长期工作或生活在90分贝以上的噪声环境,会严重影响听力和导致其他疾病的发生。

噪音主要来源:浦明路车辆噪音

结论:噪音污染较一般,睡眠质量一般者,需要特殊设计

改造措施:窗帘辅助;


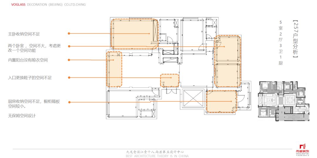
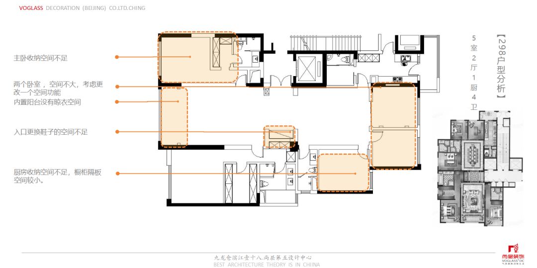
户型分析

NO.2





户型

Apartment

尚层专项组针对九龙仓楼盘的基本户型进行精确的户型分析,为您量身定做专属于您的设计,也为您设计出最适合您的家。

样板间分析

NO.4




样板间

Template room

好的设计是让空间利用更完美,一个小小的物件也能在角落散发温柔的光,每个物品的搭配,和谐共处,相得益彰又都分别彰显自身独特的光彩。


硬装交付标准分析

NO.4






水处理设备对于整个房屋设备运行,仅仅满足设备类运行,不能满足全屋系统同时运行。人体舒适性能无法达到。





橱柜的吊柜开启容易碰头。

厨房水系统,没有配末端直饮口。

橱柜,隔板间隔较小。




书房拉门,没有防护条,噪音大,漆膜面容易破损。

书房上方设备风口,注意与定制柜的关系。

背景墙,壁纸偏深,对风格,整体感觉设计搭配较为局限。



尚层九龙仓案例

NO.5




九龙仓完成案例

有无设计对比

NO.6








设计成就人对家的渴望,精致的生活是对美好初心的坚守。尚层既有为您承诺的魅力,就有即刻兑现的实力。


九龙仓占有率

NO.7







项目组已经签过10户,对于小区十分熟悉。


全案完工作品交付6套。


从毛坯到精装标准,资料完整,风格齐全。可以满足客户需求,包括局部硬装改动。


跟进楼盘两年多,签约至落地一直都在服务、关注;



项目组成员介绍

NO.8






上海数字产业园A座10层尚层装饰

400-961-9588

长按识别二维码关注我们


  • 在线咨询
  • 预约设计师

    免费预约设计师

    已有1896位别墅大宅业主获取报价

    *
    *

    *为了您的权益,您的隐私将被严格保密

    免费咨询热线

    400-961-9588

  • 预约看工地

    免费预约看工地

    已有1896位别墅大宅业主获取报价

    *
    *

    *为了您的权益,您的隐私将被严格保密

    免费咨询热线

    400-961-9588

  • 获取报价

    免费获取装修报价

    已有1896位别墅大宅业主获取报价

    *
    *

    *为了您的权益,您的隐私将被严格保密

    免费咨询热线

    400-961-9588

  • 咨询热线
    400-961-9588
    400-961-9588